

視鏡用于石油、化工、化纖、醫藥、食品等工業生產裝置中,能隨時觀察液體、氣體、蒸汽等介質的流動反應情況,是保障正常生產不可缺少的附件。
|
殼體材質 |
碳鋼、不銹鋼、玻璃鋼 |
|
|
視窗材料 |
鋼化硼硅玻璃 |
石英玻璃 |
|
工作溫度(℃) |
0~250 |
0~800 |
|
公稱壓力(MPa) |
<0.6 |
0.6~1.6 |
|
密封件材質 |
丁腈橡膠、聚四氟乙烯 |
|
|
連接形式 |
螺紋連接、法蘭連接 |
|
|
允許急變溫度(℃) |
<60 |
|
|
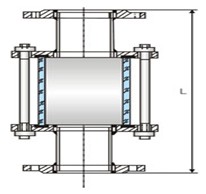
G |
DN |
玻璃管徑 |
L |
|
1/2 |
15 |
φ40×100 |
250 |
|
3/4 |
20 |
φ50×100 |
250 |
|
1 |
25 |
φ50×100 |
250 |
|
11/4 |
32 |
φ60×100 |
250 |
|
11/2 |
40 |
φ70×100 |
250 |
|
2 |
50 |
φ70×100 |
250 |
|
21/2 |
65 |
φ95×100 |
250 |
|
3 |
80 |
φ115×100 |
250 |
|
4 |
100 |
φ120×100 |
250 |
|
5 |
125 |
φ140×100 |
250 |
|
6 |
150 |
φ170×100 |
250 |
維修與保養:
a. 視鏡玻璃屬宜損件,安裝視鏡時要小心輕放。
b. 視鏡是用于觀察液體、氣體、蒸汽等介質的流動反應設備,其視窗玻璃應保持干凈無灰塵。
c. 玻璃耐溫耐壓有一定的局限,耐溫:鋼化硼硅玻璃:≤180℃,石英玻璃:800℃.耐壓:鋼化硼硅玻璃片:≤3.0MPa,
石英玻璃片:≤10.0MPa,鋼化硼硅玻璃筒:<1.0MPa,石英玻璃筒:<1.6MPa。玻璃允許急變溫度<60℃~<100℃
d. 如發現有裂紋和破損等現象,必須馬上更換。